





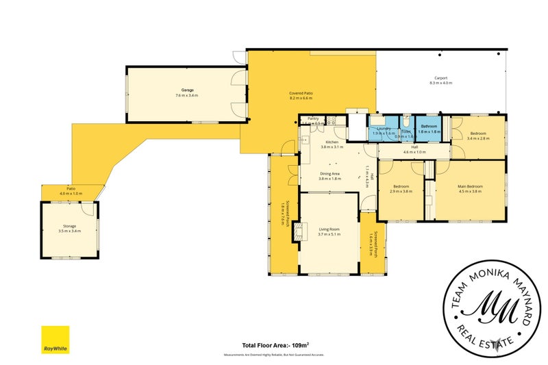
19If you're looking for a project, this one is as real as it gets. The property needs major work throughout - perfect for renovators, builders, or anyone keen to take on a full-scale do-up. Positioned on a 685sqm partially fenced section in the Mixed Housing Urban zone, there's potential development upside (subject to council approval) for those thinking bigger. * Genuine do-up - major renovations required * Mixed Housing Urban zone * Potential development options (subject to council approval) * 3 bedrooms * 1 bathroom + separate toilet * Separate lounge * Storage room/outbuilding at the rear * Double tandem garage * Plenty of off-street parking * 685sqm (approx.) partially fenced section The home offers a basic, workable layout with three bedrooms, one bathroom, a separate toilet, and a separate lounge. There's a storage room out back, adding extra space for tools or gear. Parking is sorted with a double tandem garage plus plenty of off-street parking. This is not a polished home - it's a project with potential. Contact Monika Maynard - 0274 832 515 or Aryaan Batra - 022 427 9226 to book a private viewing today!! #THEDAY 10th December 2025 from 9:00 am at Ray White Manukau (unless sold prior) Disclaimer - This property is being sold by auction and therefore a price guide can not be provided. The website may have filtered the property into a price bracket for website functionality purposes. All prospective purchasers shall complete their own due diligence, seek legal and expert advice, and satisfy themselves with respect to information supplied during the marketing of this property, including but not limited to: the floor and land sizes, boundary lines, underground services, along with any scheme plans or consents.
