





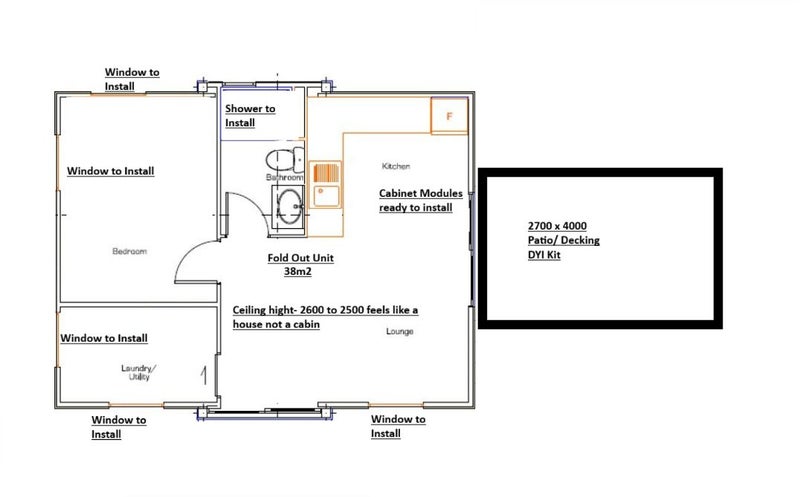
16Deluxe Fold-Out Container Home With Patio/ Decking – Ideal DIY Builders Kit (New) Price reduced to sell at a bargain price , Offers considered Back on the market due to buyer unable to finance. Viewing at McGregor Construction 24 Kensington Street , Putaruru , South Waikato Call Shelly on 07 883 7424 for viewings This beautifully designed 37.5m² one-bedroom residence with study, bathroom, kitchen, and soaring high ceilings feels like a true home from the moment you walk in when completed . You really need to view our Deluxe Display Unit it in person to appreciate the sense of space, quality, and finish. Ideal for a single professional, couple, or retired pair ready to move quickly into a modern, low-maintenance home. Why Choose This Home? - Architect-Designed & NZCP Engineer Code Compliant – Unlike many small homes on the market, this unit is designed to meet building codes NZ living standards. - Smart Investment – A home you can live in , use as a beach batch, a Granny flat at the back of your existing home that adds real value. rent out for an income it could be rented for $500 per week Key Features - Spacious layout: 7.0m x 5.8m (37.5m²) - One bedroom + study – versatile extra space for office or guests - Bathroom, Ready for Your NZ Plumber to complete - Stylish kitchen cabinets made up ready to Install - High ceilings – light, airy, and open, nothing like a cabin feel - Steel frame construction – engineered in NZ for strength & durability - Fully insulated walls, ceiling, to H1 NZ standards - Electrical wired out ready for you NZ Electrician to complete connections and certify - Patio/ Decking Kit Included - Easily transported and consent able to local authority requirements - Install instructions provided ( We can guide you through each step ) A great easy unit for a DYI builder to complete ready to move in , usually only takes one week to complete final stages ready to move we can guide you through each step with support documentation
