




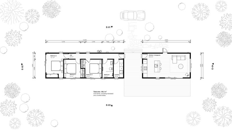
7REDUCED TO SELL – Consented Modular Home (54.6m²) This consented modular home offers a flexible, ready-to-finish opportunity — ideal as an office, extra bedrooms, or a compact standalone home. This is a very well built home, built to a high standard with high quality materials. Suitable for high wind zone areas. Double glazing on the windows, and fully insulated. The current module measures 13m x 4.2m (54.6m²) and includes 3 bedrooms, a bathroom, and laundry. The living room module shown in the second floor plan has not been built yet, but can be added now, or later to expand the total size to 88m² –100m² depending on your needs. Current stage: The module is partially complete — Cladding, roofing, joinery, interior linings, pre-wiring, pre-plumb, and square-stopped plastering is done, but the following internal work remains: - Painting - Door and tile installation - Bathroom vanity & tapware fit-off (Tapware will be supplied) - Flooring - Electrical fit-off This build is a great option if you’re looking to: - Extend your home with extra bedrooms, a bathroom, and laundry - Add an office or studio space to your property - Start small and expand later with an additional living module Pricing: As-is (unfinished internally): $119,999 Completed by us - Please enquire for more info. A fantastic opportunity to secure a high-quality, consented modular build at a heavily reduced price — ready for completion and installation to suit your needs.
